Available
Let
30000 - 75000 sqft

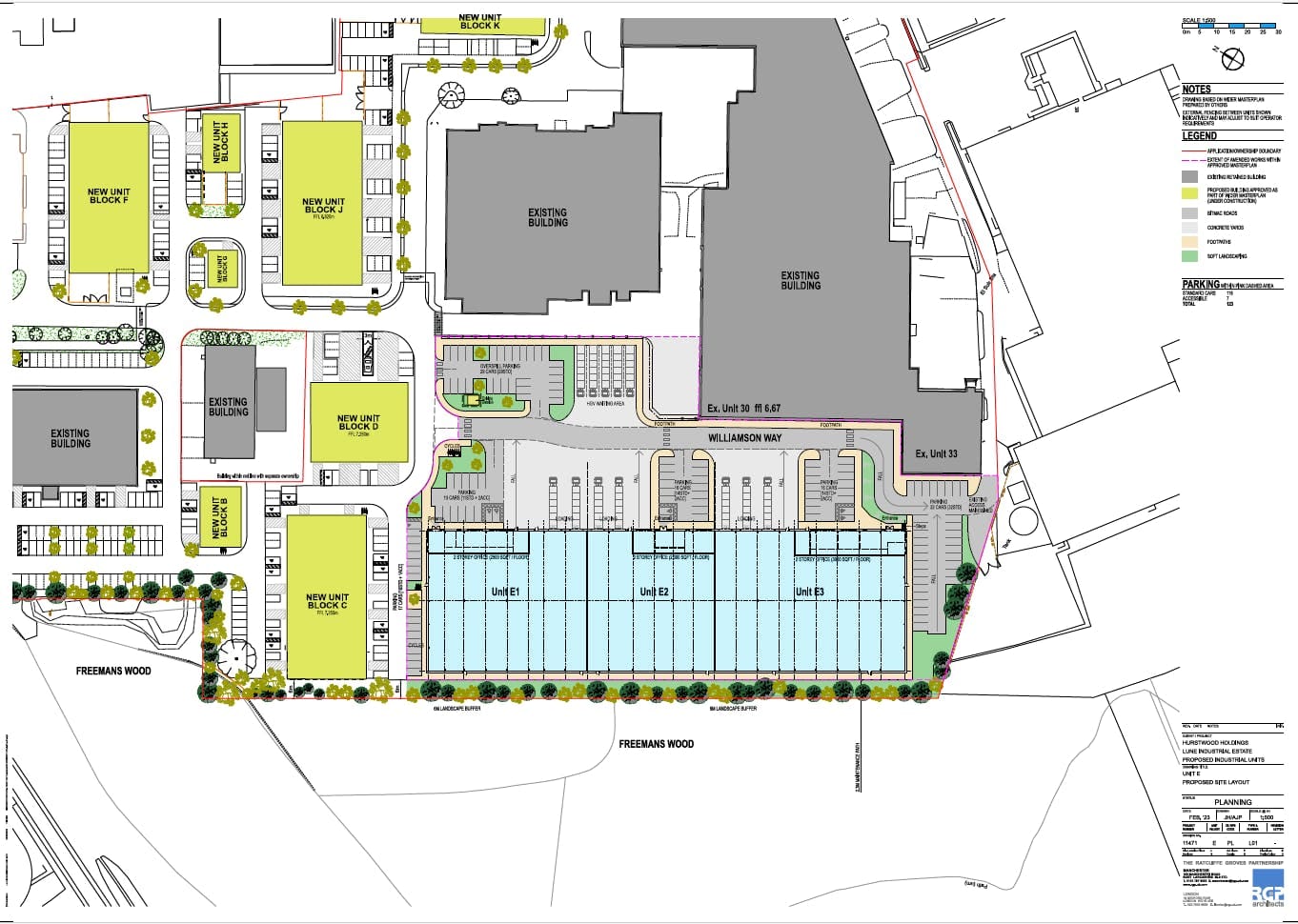
Block E- Design and Build
Abbots Way, Lancaster, LA1 5QP

Type
Development
To Let
Rent (p/m)
On Application
Design and Build
ESG Credentials
Self contained yard
Grade A
Build to suit
Description
Block E consists of Design & Build opportunity from 30,000sqft to a stand alone, self contained distribution / manufacturing facility of 75,000sqft. Lune Business Park is a major new 23-acre development by Hurstwood Holdings providing an opportunity for tenants to expand or relocate at this established park in the busy city of Lancaster. This mixed-use scheme, totaling 200,000 sq ft of new industrial space comprising 65 units, will provide high quality and refurbished units ranging in size from 1,000 sq ft –150,000 sq ft.
Location
Lune Business Park is located just a mile from the centre of Lancaster on New Quay Road, adjacent to the river Lune. It is within a short drive of junctions 33 and 34 of the M6 motorway. The A6 passes through Lancaster city centre leading southwards to Preston, Chorley and Manchester and northwards to Carnforth, Kendal,Penrith and Carlisle. The A683 link road, opened in recent years, has further improved access in the area. Lancaster is served by the West Coast Main Line at Lancaster railway station.
Would you like to hear more about this property?
Name
Part Unit
Full Unit
Sq Ft.
30000
75000
Rent / Price
£26,250 month
£62,500 month
Service Charge
£1750 sqft
£4375 month
About us...
Why choose Hurstwood Holdings?

Prime locations and unmatched accessibility

Our properties are in high-demand areas with great transport links, ensuring easy access for businesses, employees, and customers. Whether it’s office, industrial, retail, or leisure, our locations offer visibility and convenience.

Flexible & customisable spaces

We provide tailored solutions with flexible lease terms and adaptable layouts. From small suites to large facilities, our spaces support businesses of all sizes and industries.

Reliable support & high standards

Tenant satisfaction is our priority. Our well-maintained properties meet modern safety and environmental standards, backed by a dedicated team ensuring seamless support at every stage.

A Truly Dedicated Property Company

Contact Us
Follow us on instagram for the latest news